

Competition for II World War museum in Gdansk, Poland
1. LOCATION
The area for the construction of the Museum of the Second World War is covered by the conservation protection zone and is located within the boundaries of the area recognized as a historical monument, the border of which runs along the northern border of the plot. Along the southern border of the plot runs the historic Radunia Canal flowing into the Mołtawa River. There is a walking boulevard on the opposite bank of the canal. On the other hand, the areas located to the east and west of the subject area will be developed in accordance with the Local Spatial Development Plans, i.e. with particular emphasis on the reconstruction of historical plots with a functional purpose allowed by the Local Development Plan.
2. IDEA
The Museum of the Second World War as a space containing elements depicting the dramatic events of the end of the first half of the last century should be special in its expression. with the distance provided by passing time.
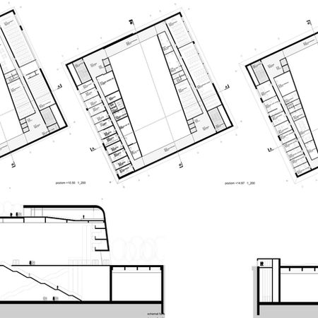
One of the main design assumptions was to create a building as a symbol, an icon in the form of a bunker, which would contain the necessary information. The bunker would be a gate, an element leading to a closed space, another world containing priceless exhibits depicting the dramatic events of World War II. The space around the symbol would complement the atmosphere of deep reverie created inside through the appropriate arrangement of the outdoor exhibition and skilful incorporation of elements of small architecture into the reconstruction of historical parcels connecting the designed functions with the place on which it will be built.
Project Gallery
















