top of page


Youth center in Stensparken, Oslo
Cutural senter for youth
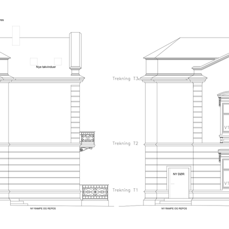
Pilestredet 84b, Korpehaugen, a brick villa from 1887 located in the northern part of
Stensparken in Oslo, Norway. The building is a former priest's residence which is protected according to the Plan and the Building Act. Feasibility study with calculation and preliminary project for turnkey contracting.
Rehabilitation and conversion to district housing in the St. Hanshaugen district.
Rehabilitation and conversion of a listed building into a new district center with various cultural activities for youth.
Size: 555 m2
Sart of the project 2016 and works being done 2018-2019
Listed building from 1887, former priest's residence.
Project manager/architects: Siv arch. Kristin Lande Andersen, Siv. arch. Marthe Disen, Siv.arch. Justyna Korotynska
Project Gallery

bottom of page








